Naslovna > Teleskopski cevni kompenzator (TCK)
Teleskopski cevni kompenzator (TCK)
Tehnicki podaci
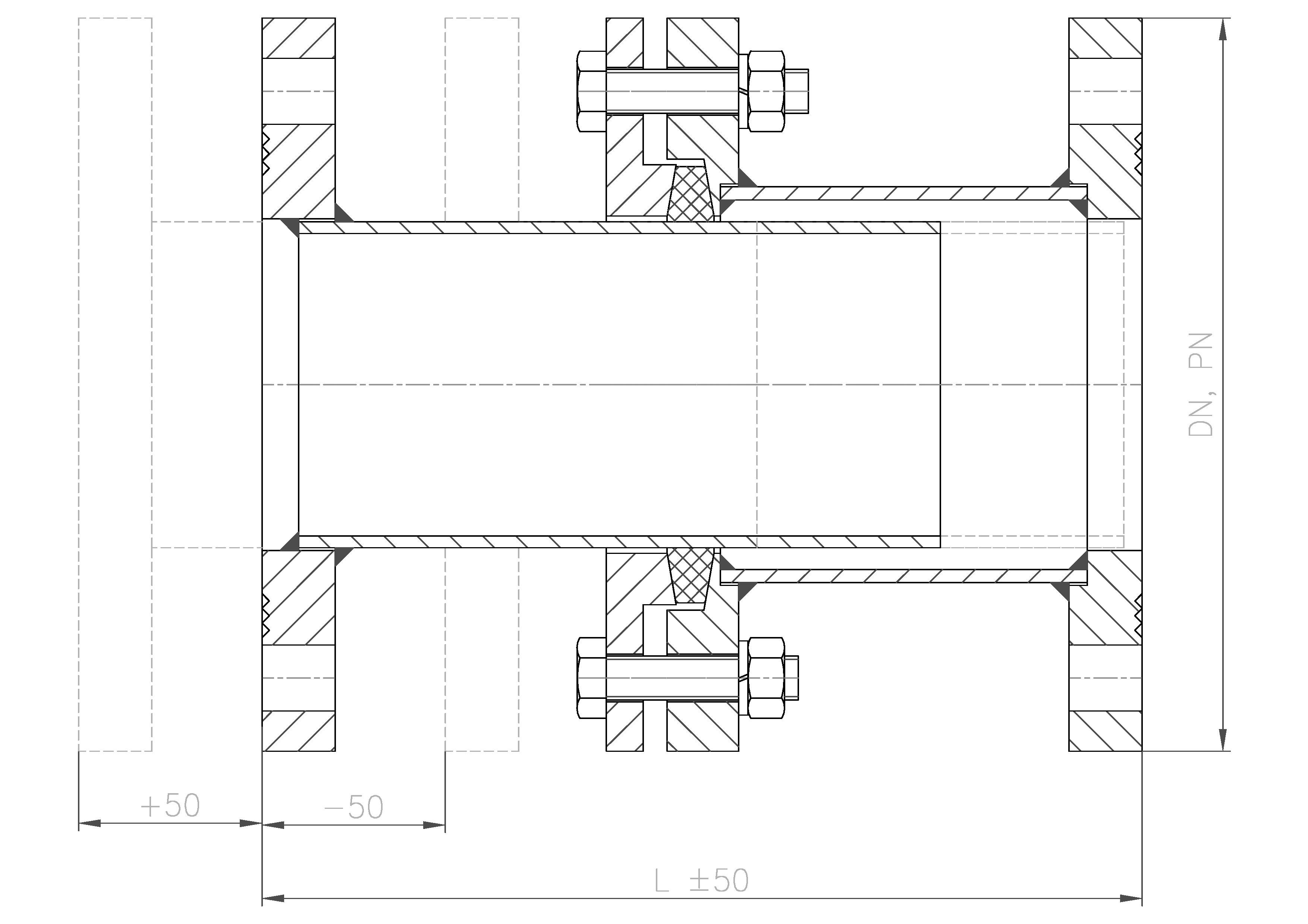
FEROPLAST TELESKOPSKI CEVNI KOMPENZATOR (TCK) je vrlo značajna komponenta cevovoda koja služi da kompenzuje odstupanja u dužini određene deonice cevovoda, a koje nastaju zbog različite temperature same cevi. Teleskopski cevni kompenzator je sastavljen od priključnih pritibnica koje se vezuju sa prirubnicama cevovoda i kliznog sklopa sa dve cevi, od kojih jedna klizi u drugoj i tako menja ugradnu dužinu. Promena dužine kompenzatora prati promene ukupne dužine deonice koje nastaju usled promena temperature. Klizni spoj dve cevi je pouzdano zaptiven, a klizanje se vrši neprestano, u skladu sa promenama temperature radnog fluida i okoline kojima je cevovod u radu izložen.
Bitna karakteristika FEROPLAST TCK teleskopskog cevnog kompenzatora jeste da se može koristiti samo za kompenzaciju aksijalnih dužinskih mera i čisto ugaonih osnih odstupanja deonice cevovoda. Bilo kakva radijalnih odstupanja nisu dozvoljena. Ugrađeni kompenzator ima sve karakteristike cevovoda na koji je ugrađen jer u kliznom spoju prečnik manje cevi odgovara prečniku standardne cevi.
Ugradne dužine kompenzatora u srednjem položaju date su na skici i u tabeli u Tehničkim podacima i iste su za pritiske PN 10 i PN 16. Veličina kompenzacije je uvek ±50 mm od srednjeg položaja, kako se vidi na skici. Priključne mere prirubnica odgovaraju standardu EN 1092-1, za odgovarajući DN i pritisak PN.
Prednosti konstrukcije:
Teleskopski cevni kompenzator je izrađen u zavarenoj konstrukciji. Priključne prirubnice i pritezne prirubnice zaptivača su od konstruktivnog čelika, a obe cevi su standardne cevi od nelegiranog čelika. Profilisani zaptivni prsten izrađen je od kvalitetnog elastomera EPDM i u priteznim prirubnicama leži u upustu specifičnog oblika. Površina cevi koja klizi u zaptivaču je fino obrađena i brušena tako da ne oštećuje zaptivač, a ostvaruje pouzdano zaptivanje prilikom klizanja cevi.
Montaža:
Spajanje sa standardnim prirubnicama cevovoda.
Nazivne veličine:
DN 50...DN 1000.
Nazivni pritisak:
PN 10 i PN 16.
Temperature:
Za zaptivač EPDM, -30°C...+140°C
Radni fluid:
Voda ili drugi fluid koji nije agresivan za ugljenični čelik i EPDM.
Ispitivanje:
Svaki cevni kompenzator se završno ispituje pritiskom prema EN 12266-1, ispitivanje P10 i P11 (čvrstoća i zaptivenost kućišta). Ispitni fluid je voda.
Materijali:
U osnovnoj izvedbi prirubnice su od ugljeničnog čelika, a obe cevi su od standardnih cevi od nelegiranog čelika. Profilni zaptivač je izrađen od kvalitetnog elastomera EPDM.
Sve unutrašnje i spoljnje površine teleskopskog cevnog kompenzatora su zaštićene plastificiranjem, sa debljinom sloja najmanje 250 µm.
Na zahtev:
Teleskopski cevni kompenzator može biti izrađen sa priključnim prirubnicama prema nekim drugim standardima, ili od nerđajućeg čelika. Profilni zaptivač može biti izrađen od druge vrste elastomera, sa sličnim osobinama.
Cevni kompenzator može biti izrađen i za druge nazivne pritiske, sa drugim ugradnom dužinama i sa kompenzacijama dužine koje su veće od ±50 mm.
Na zahtev
Cena: RSD
